Kort om prosjektet

 

På Fisterhammaren kommer et moderne leilighetsbygg med fire lettstelte og innholdsrike leiligheter. Prosjektet har helhetlige løsninger, solide materialvalg og gode planløsninger – tilpasset både landskapet og moderne bokrav.

Leilighetene er utviklet med fokus på bokvalitet, praktiske løsninger og varig estetikk. Alle ligger på ett plan og får åpne oppholdsrom med store vindusflater som slipper inn mye dagslys. Dette er boliger som passer godt for voksne og par som ønsker en komfortabel og moderne hverdag i grønne omgivelser.

 

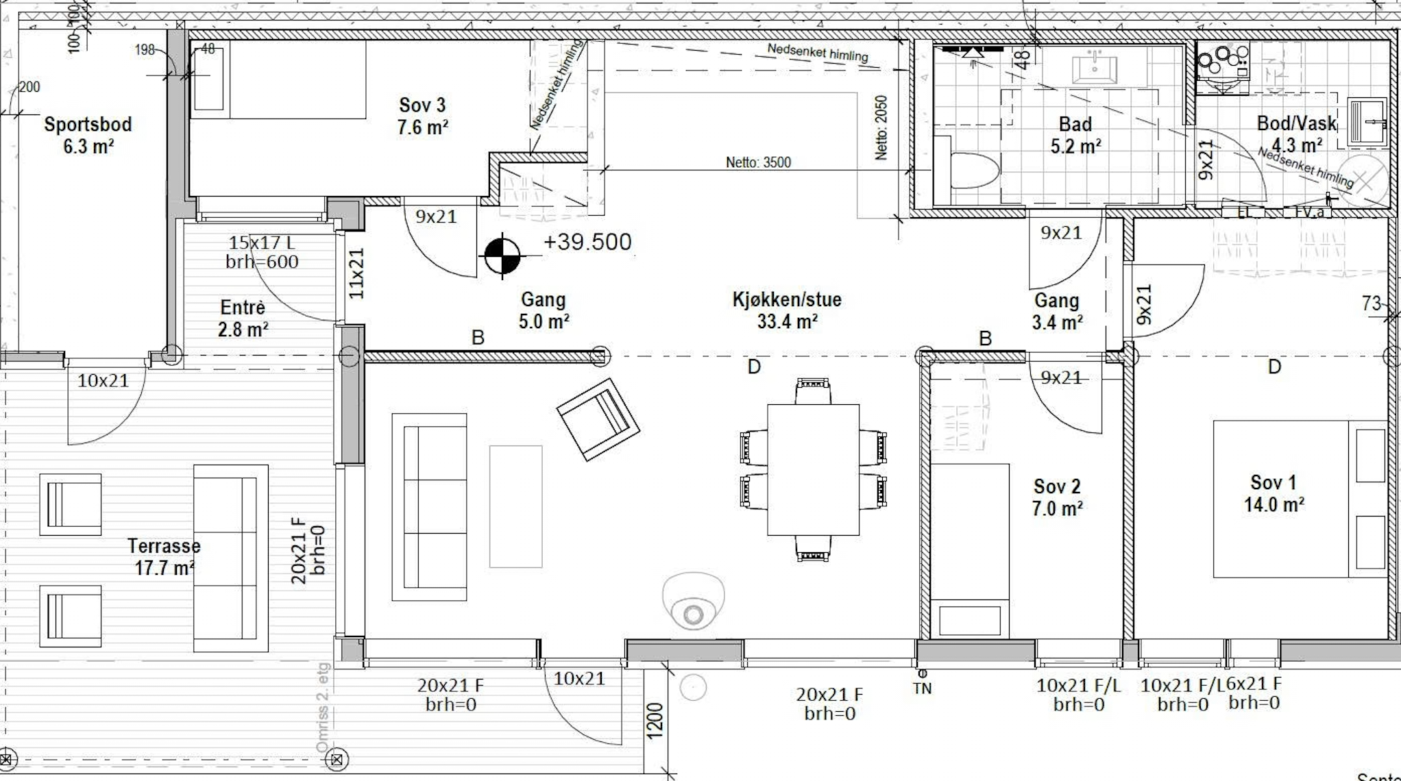
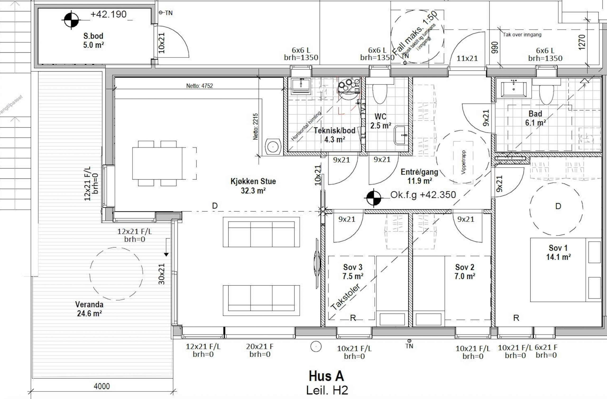
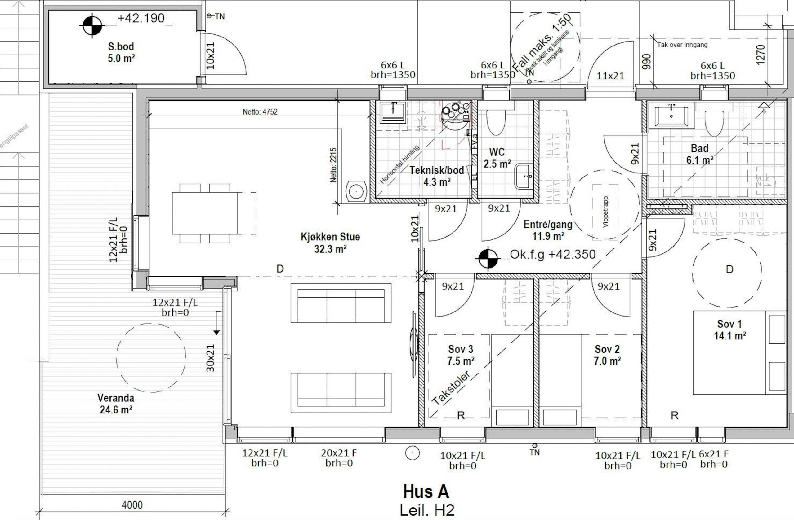
Innholdsrike leiligheter

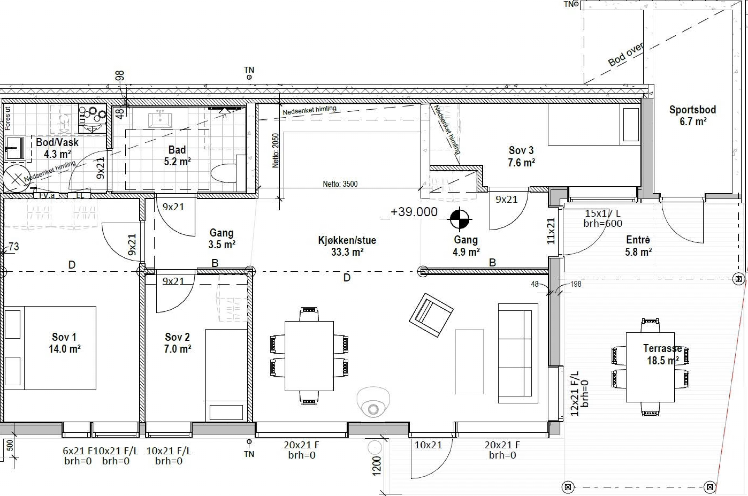
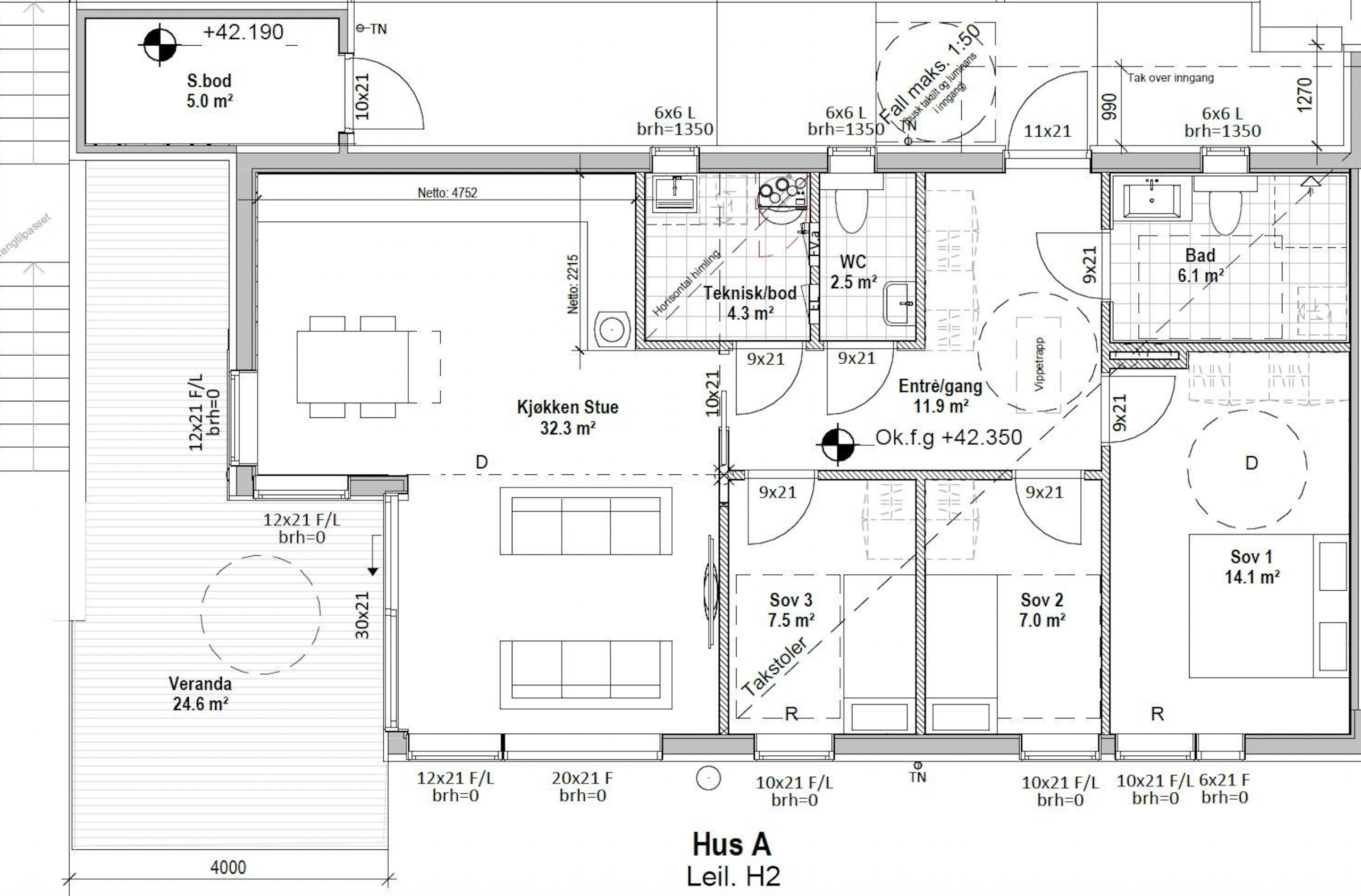
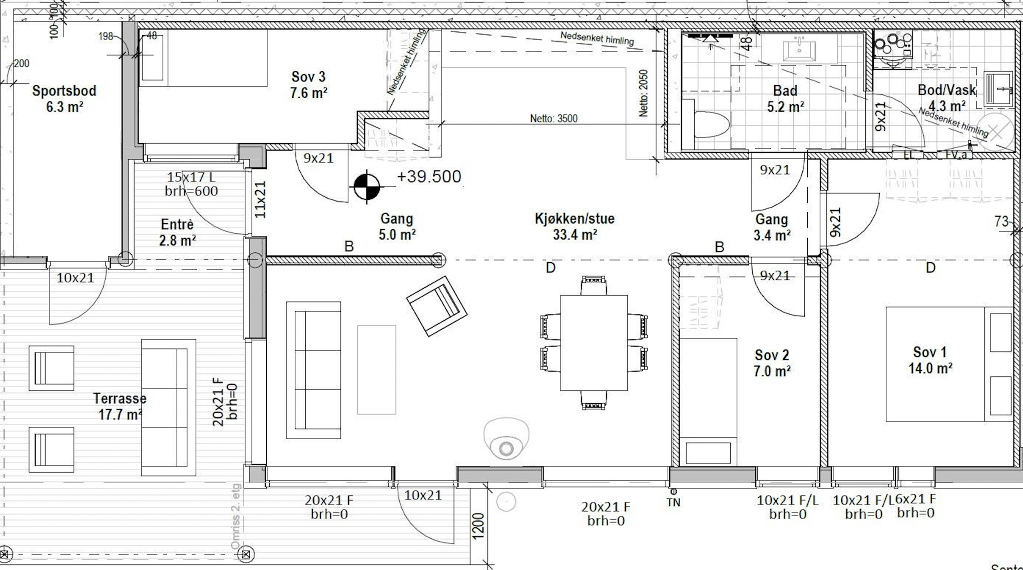
Hver leilighet får entré/gang, åpen stue/kjøkkenløsning, tre soverom, flislagt bad og bod/vaskerom. Alle har utvendig sportsbod og egen parkeringsplass.

 

Gode materialvalg og moderne standard

Boligene leveres med gjennomtenkte løsninger og moderne standard:

  • Kjøkken med tidløst design og integrerte hvitevarer
  • Flislagte bad
  • Pipe og ildsted
  • Gulvvarme i stue, kjøkken og bad
  • Balansert ventilasjon og praktiske boder
  • Royalimpregnert kledning og terrasse/balkong

Flotte omgivelser

Fisterhammaren ligger fredelig til i naturskjønne omgivelser, med kort vei til sjøen og flotte turområder. Et ideelt sted for deg som ønsker en lettstelt bolig med nærhet til naturen og kort vei til daglige servicetilbud.

 

 

Meld din interesse i dag!


    Dette skjemaet er beskyttet av reCAPTCHA, og Googles personvernerklæring og vilkår for bruk gjelder.


    Kontakt Oddvar Østrem

    Salg bolig/fritidsbolig/tilbygg

    Telefon: 982 93 525 Epost: oo@ryftre.no