Kort om prosjektet

 

To nye eneboliger med moderne uttrykk og gjennomgående god kvalitet. Boligene går over to etasjer og får store vindusflater, fleksible planløsninger og solrik uteplass med hage.

Fullshammersvingen 2 og 4 er prosjektert med fokus på funksjonalitet og god bokvalitet. Store vindusflater gir rikelig lys og god kontakt med uteområdene, mens materialvalg og tekniske løsninger sikrer lave vedlikeholdskostnader. Planløsningene passer både for barnefamilier og par som ønsker en moderne bolig med god plass.

 

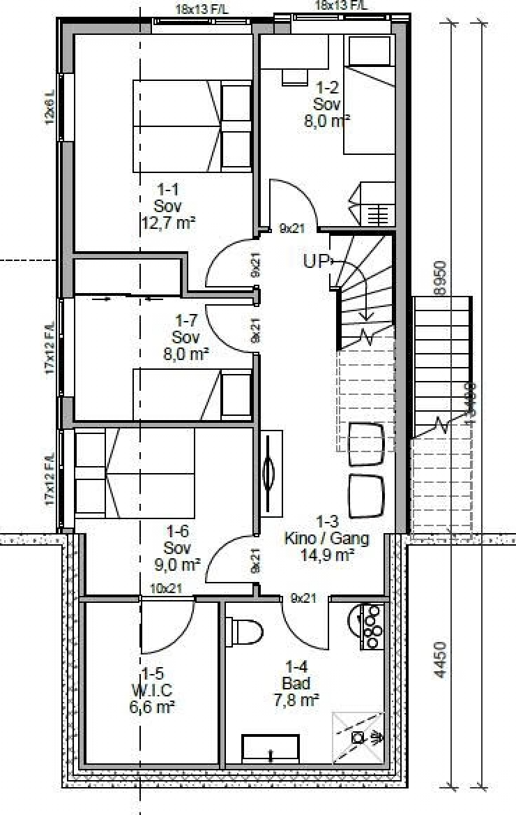
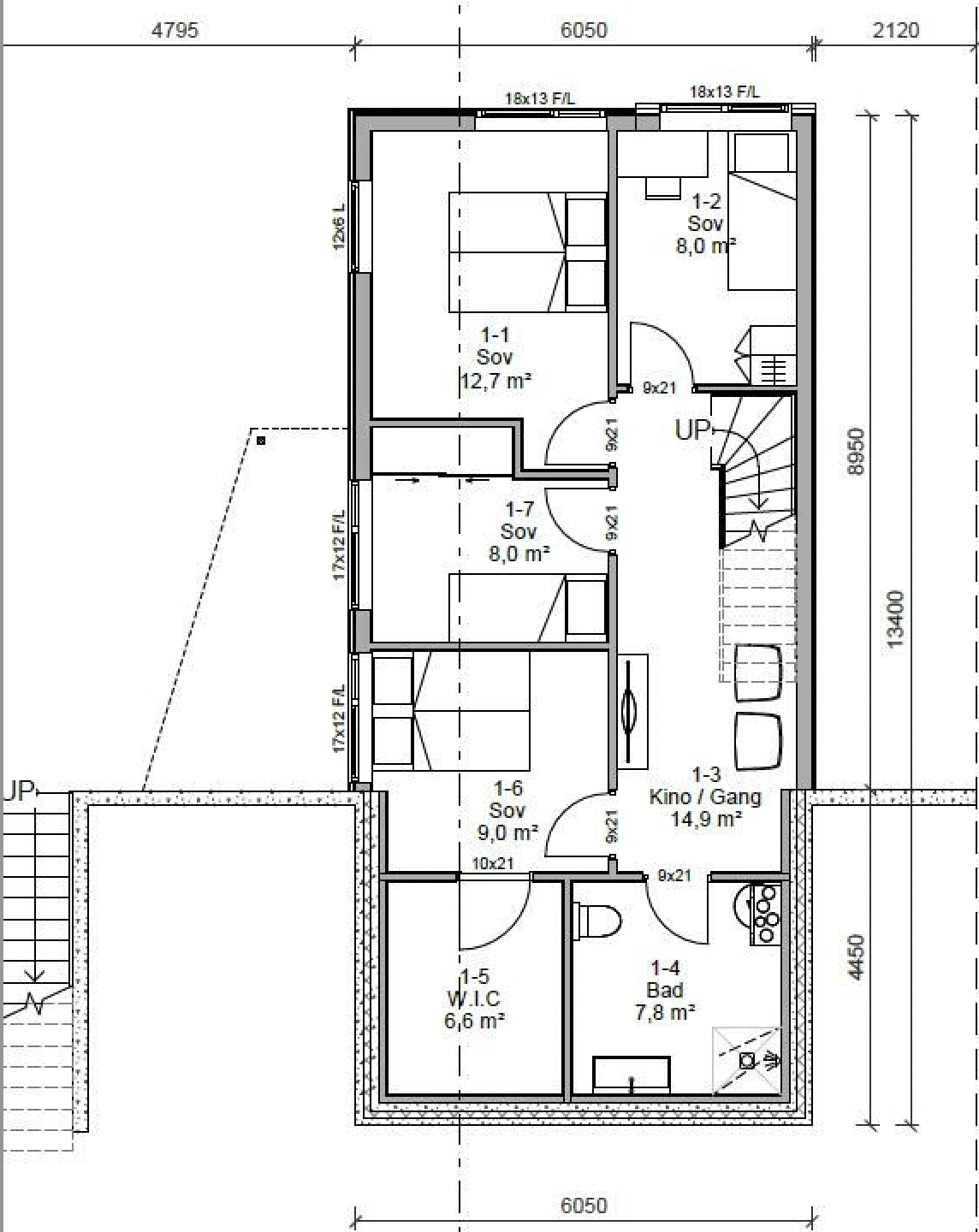
Boligens innhold

Begge boligene får åpen og lys stue/kjøkken-løsning, kjøkken fra Sigdal med integrerte hvitevarer, flere soverom, bad, separat WC og teknisk/vaskerom. Bad leveres flislagt med varmekabler, og det blir gulvvarme i utvalgte rom. Utvendig leveres royalimpregnert kledning og vinduer med aluminiumsbeslag – for lang levetid og minimalt vedlikehold.

 

Attraktivt boligområde

Boligene ligger i et rolig, etablert og barnevennlig område – med kort vei til lekeplasser, grøntområder og turstier. Nærhet til skole, barnehage og dagligvare, og enkel forbindelse til Jørpeland sentrum og arbeidsplasser i regionen.

 

Pris og omkostninger

Salgspris gjelder per bolig. Maler-/gulvpakke kan leveres for kr 350.000,- hvis du ikke ønsker å gjøre dette selv.

I tillegg kommer:

  • Dokumentavgift (2,5 % av tomteverdi)
  • Tinglysingsgebyr skjøte og pant
  • Kommunale rekkefølgekrav (Strand kommune)

 

Kontakt Oddvar Østrem

Salg bolig/fritidsbolig/tilbygg

Telefon: 982 93 525 Epost: oo@ryftre.no

Meld din interesse i dag!


    Dette skjemaet er beskyttet av reCAPTCHA, og Googles personvernerklæring og vilkår for bruk gjelder.