Kort om prosjektet

Nye tomannsboliger i Gaupestien med smarte løsninger, store vinduer og solrike uteplasser. 118 m² BRA, sørvendt balkong og terrasse samt carport med bod. Kort vei til skole, barnehage, idrettsanlegg og fine turstier.

Beskrivelse

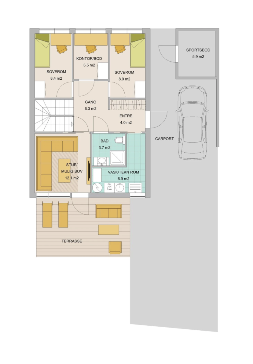
Tomannsboligene har 3-4 soverom og 2 bad, åpen stue og kjøkkenløsning med direkte utgang til balkong. Her er også ekstra takhøyde (opptil 3 meter) og store vindusflater i front. Alle boligene leveres med troldtekthimling i store deler av andre etasje – et eksklusivt materiale som har akustiske egenskaper og sørger for godt og rolig lydmiljø. Alle boligene får balkong og terrasse mot sør.

 

Populære Resahagen

Resahagen på Jørpeland er et attraktivt boligfelt som kombinerer moderne bomiljø med nærhet til natur, skole og hverdagsfasiliteter. Her bor du i et rolig og barnevennlig område med gangavstand til idrettsanlegg, barnehage og sentrumstilbud. Boligfeltet ligger solrikt og åpent til, med flotte uteområder og gode møteplasser som legger til rette for et trygt og sosialt nærmiljø. Resahagen passer for både familier og førstegangskjøpere som ønsker et nytt og funksjonelt hjem i naturskjønne omgivelser.

 

Tett på tur og friluftsliv

Resahagen byr også på nærhet til flotte turområder. Med turstier og grønne lunger i umiddelbar nærhet, er det enkelt å komme seg ut for en kveldstur, en løpetur eller lengre familieturer. Området er et ideelt utgangspunkt for å utforske Jørpelands omgivelser og Ryfylkes flotte landskap.

 

Kontakt Oddvar Østrem

Salg bolig/fritidsbolig/tilbygg

Telefon: 982 93 525 Epost: oo@ryftre.no

Meld din interesse i dag!


    Dette skjemaet er beskyttet av reCAPTCHA, og Googles personvernerklæring og vilkår for bruk gjelder.